Un architecte pour le projet de construction de votre maison individuelle à Antony et alentour
Je vous accompagne à chaque étape de votre projet.
Ma mission : vous accompagner à chaque étape de votre projet pour une maison sur mesure
J’accompagne mes clients à chaque étape de leur projet de construction, de la première esquisse jusqu’à la remise des clés.
En prenant en compte les contraintes économiques, techniques et réglementaires, je m’assure que chaque détail est parfaitement maîtrisé.
Faire appel à un architecte pour construire sa maison vous permet de profiter d’une expertise complète, pour un projet unique projet unique et adapté à vos besoins et envies.
Maison de ville - Sceaux
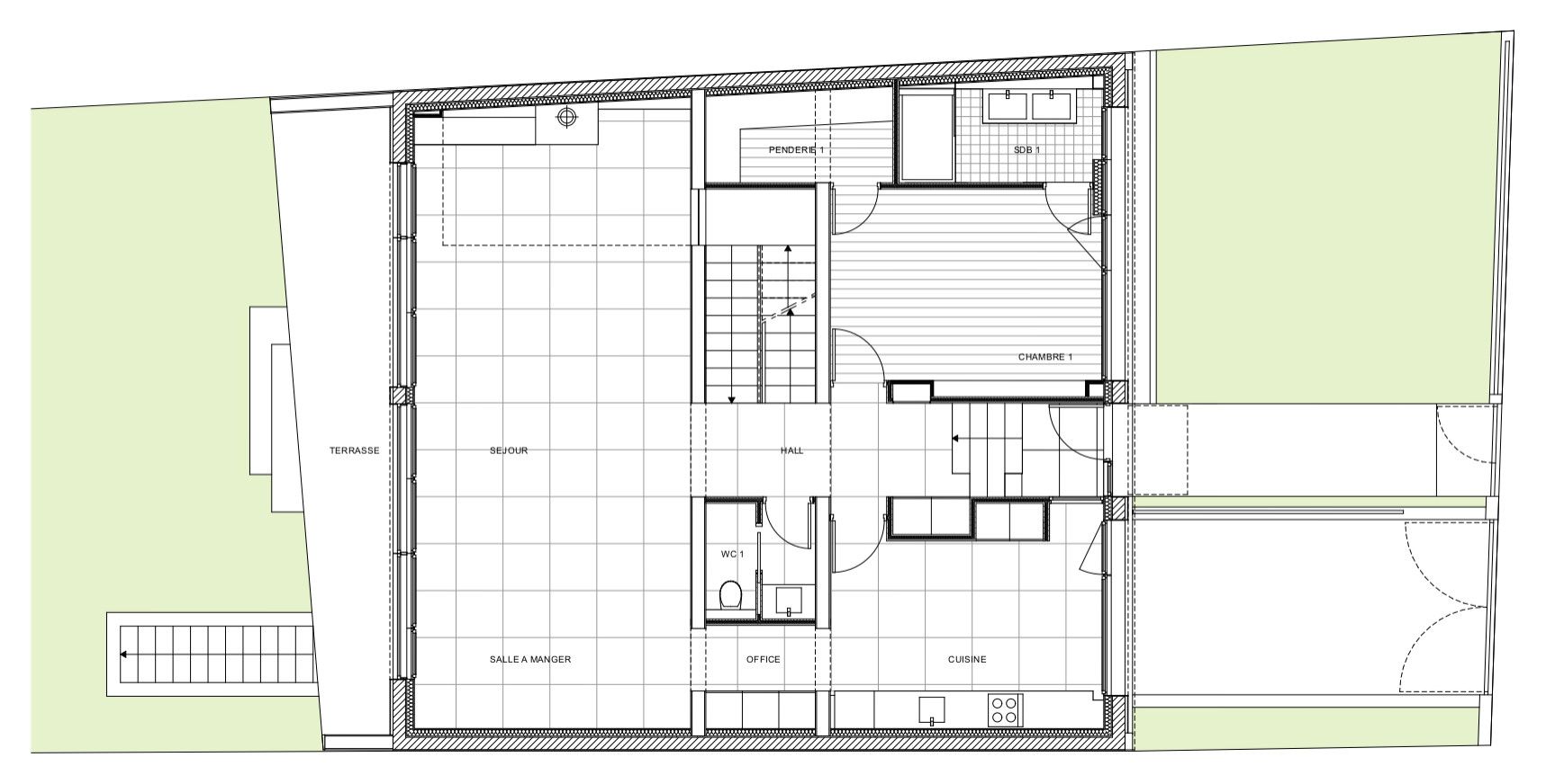
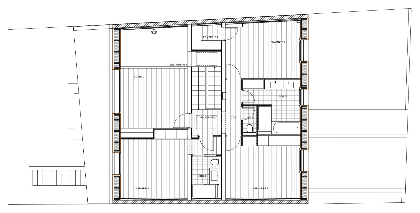
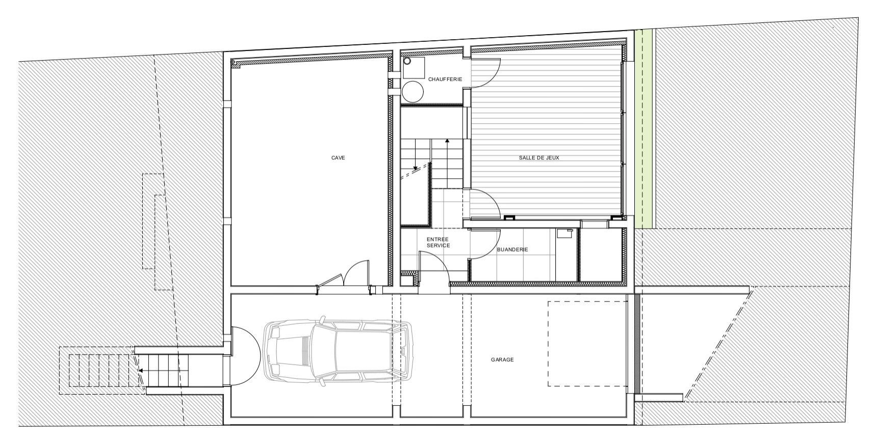
La maison se glisse entre ses deux voisins. C’est un simple parallélépipède ouvert sur ces deux petits côtés et comme posé en équilibre sur un bloc peint en rouge vif qui sépare l’entrée de la maison de la place de stationnement.
L’organisation en demi-niveaux a permis de raccorder le séjour au terrain en légère déclivité et de lui offrir une grande hauteur.
Au centre de la maison, l’escalier métallique aérien se développe dans un vide généreusement éclairé par une verrière et une baie de toute hauteur tournée vers le sud.
Les différentes pièces sont éclairées par de grands châssis vitrés fixes cadrant le paysage. La ventilation est assurée par des volets pleins débattant à l’extérieur.
Maison neuve - Clamart
Le terrain était libre de toute construction. L’implantation de la maison s’est vite imposée, s’appuyant sur les alignements des façades voisines. L’obligation d’une toiture en pente a en partie dicté le projet.
Une couverture en zinc rouge, « déchirée » par trois lucarnes, est une référence aux villas meulières et aux toitures Mansart de la rue.
La ligne décalée du faîtage vient actualiser cette attention. Le rez-de-chaussée, légèrement surélevé par rapport à la rue, permet d’éclairer une partie du sous-sol.
Du côté du jardin, le séjour se trouve de niveau avec la pente du terrain.
La cage d’escalier forme une faille étroite de neuf mètres de haut. Installée au cœur de la maison, elle donne à voir par quelques ouvertures la profondeur et la hauteur de celle-ci.












































































