Extension, surélévation, rénovation de maison à Antony et alentour
Adaptez votre logement à votre nouveau mode de vie.
Transformez votre maison pour répondre à vos besoins évolutifs
Peu importent vos besoins, accueillir un nouvel enfant, créer un espace de télétravail ou moderniser une maison ancienne, j’accompagne mes clients à chaque étape de leur projet d’extension, de rénovation ou de surélévation.
De la première esquisse jusqu’à la remise des clés, je donne vie à vos projets en tenant compte des contraintes économiques, techniques et réglementaires qui y sont liées.
Faire appel à mon expérience pour ces travaux vous permet de profiter d’une expertise complète, pour une transformation harmonieuse et adaptée à vos besoins.
Découvrez les projets de rénovation, d'extension et de surélévation de nos clients
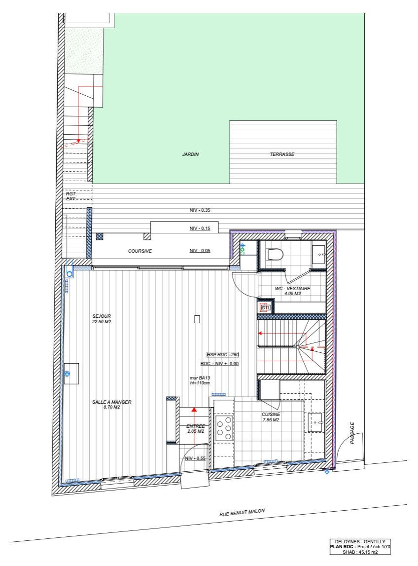
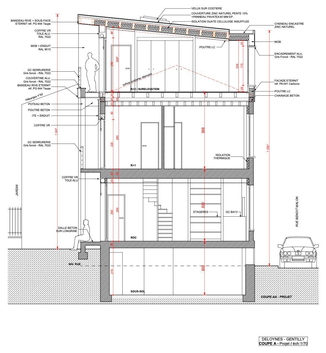
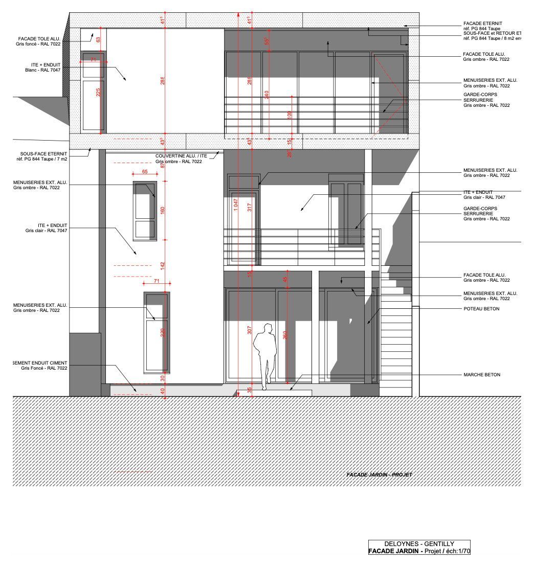
Surélévation - Gentilly
Le projet, en plus du gain de surface attendu, devait aussi permettre de repenser l'organisation du rez-de-chaussée et de sa relation avec le jardin.
La surélévation est conçue comme une boîte posée en équilibre sur la construction existante.
Le principe d'une construction en bois a été retenu pour ses nombreux avantages : la rigidité du plancher en bois permettant de résoudre la question des porte-à-faux et de répartir la charge sur l'existant fragile.
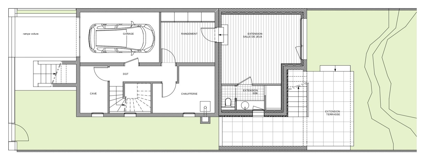
Extension - Bourg-la-Reine
L’exiguïté de la maison et son organisation ont décidé les propriétaires à la réalisation d’une extension.
Le projet, en plus du gain de surface, devait faciliter l’accès au jardin situé deux mètres en contrebas du séjour.
Le volume carré et épuré de l’extension est posé devant la maison et occupe toute la largeur du terrain afin de contourner les contraintes de recul.
Le volume créé a été extrudé pour laisser un accès au jardin depuis la rue.
Le séjour en belvédère sur le jardin bénéficie d’une large façade vitrée en « accordéon » sur deux côtés.
L’escalier métallique extérieur, comme une échelle de coupée, rejoint la terrasse pour une halte intermédiaire avant de gagner le jardin.
À moitié enfouie, une salle de jeux se glisse sous l’extension.
Bien qu’apparemment simple, la construction a nécessité un certain savoir-faire dans la réalisation des poutres formant le portique et d’un radier en béton.
Pour la gestion des eaux pluviales, la toiture plate a été végétalisée et un puisard a été réalisé.
























































